ホーム
日之影を知る
日之影での生活
移住者インタビュー
ホーム
日之影を知る
移住支援制度情報
日之影での生活
手続き情報
移住者インタビュー
求人情報
空き家情報
お問い合わせ
個人情報の取扱い
メールでの
お問い合わせ
お電話での
お問い合わせ
空き家情報
ホーム
空き家情報
空き家No.61
61
空き家No.61
賃貸
管理No
61
住所
日之影町大字七折2908番地1
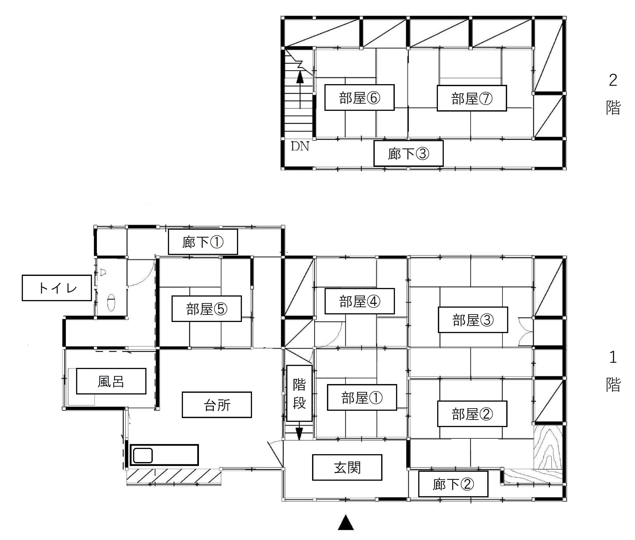
構造
木造2階建
延床面積
164.04㎡
建築時期
昭和32年
種別
賃貸
金額
30,000円
水道
町水道
トイレ
水洗
備考
物件情報の詳細はこちら
外観①
外観②
玄関
部屋①
部屋②
部屋③
部屋④
部屋⑤
台所
台所
廊下①
洗面台
トイレ
風呂
廊下②
階段
部屋⑥
部屋⑦
廊下③